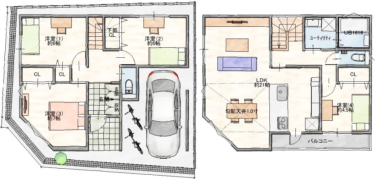
◆全6区画×3000万円台~×4LDK~◆
利便性に優れた若江エリアで
6つの家族の新生活が始まります。
第Ⅰ期販売中!
「毎日の車の出し入れでストレスを感じたくない!」
「2階建てのお家がいい!」
「家族が集まるLDKは広くないと!」
そんなご家族にご紹介です!
初めてのお家探しや、マンションからの住み替え…
様々なニーズに対応出来るのは市内分譲実績【1,500棟】を超える実績があるからです。
まずは、一級建築士の監修と分譲実績から得たニーズを反映させた
【NICO×ACTUS】プロデュースモデルハウスをご覧下さい!















